高知市不動産はドリーム不動産|高知市の店舗|高知市のテナント|高知市の事務所|高知市のロードサイド|高知市の事業用-高知市不動産情報は高知ドリーム不動産-高知市中心街・高知市内・高知県内.高知賃貸売買情報・高知の貸ビル・売土地・高知市内の各種事業用物件はドリーム不動産にお任せください【売り家情報】
高知市不動産情報はドリーム不動産の店舗-テナント-事務所-ロードサイド-事業用物件-借地|高知市春野売り家のご案内です
高知市不動産はドリーム不動産
営業時間10:00〜18:00
高知市ドリーム不動産の店舗テナント事務所事業用売買物件情報
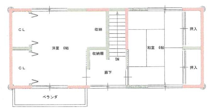
開放感あり!風通しも良好な4DK★和室もリビングとは違う緩やかな空間★室内綺麗です!
高知市 春野 南ヶ丘
2,850万円
このページの先頭へ
高知市不動産物件情報
高知市不動産はドリーム不動産
高知ドリーム不動産
テナント別情報
地区別情報
貸店舗情報
貸事務所情報
ロードサイド物件
郊外型事務所
独立型店舗
インター周辺事務所
貸工場
貸倉庫
貸土地
居酒屋
スナック物件
バー物件
会社概要
アクセス地図
不動産情報
ドリーム不動産物件情報
売買物件情報(収益物件ほか)
高知市ドリーム不動産
〒780-0901 高知市上町3丁目12番15号
非公開物件も有り!店舗をお探しの方、お気軽に直接当社までご連絡下さいませ!
このページの先頭へ